Urs Füssler → AM Basel → 5. Obergeschoss → Poster R → ( « .., Fig. 7, .. » )
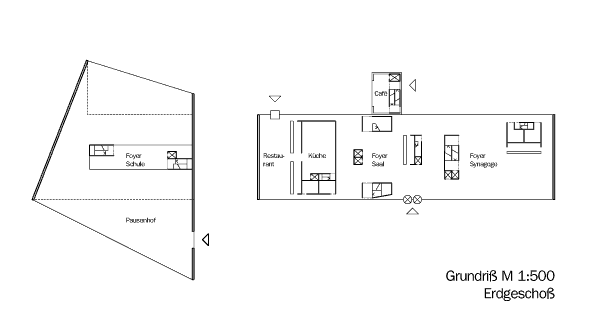
Jüdisches Gemeindezentrum* Sankt Jakobs Platz, München Erdgeschoss